air loop - Unitary heat Cool

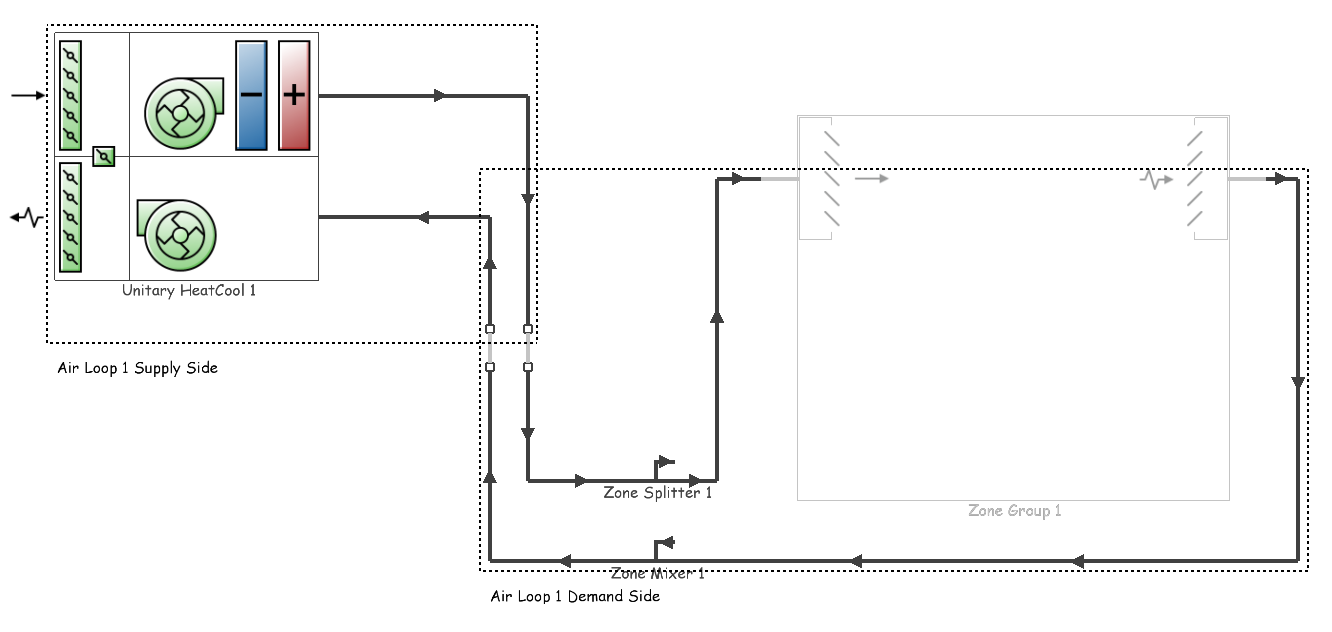
The unitary heat cool air loop is similar to the Generic single duct air loop but instead of a Generic air handling unit, the supply sub-loop contains a Packaged unitary heat cool AHU component which incorporates DX heating and DX cooling coils consequently does not require any plant or condenser loops to be defined.

 

The image below shows a unitary heat cool air loop connected to a Zone group.

 

 

See also: